部屋の概要
新住所 〒240-0001横浜市保土ケ谷区川辺町2-9 保土ケ谷区役所別館

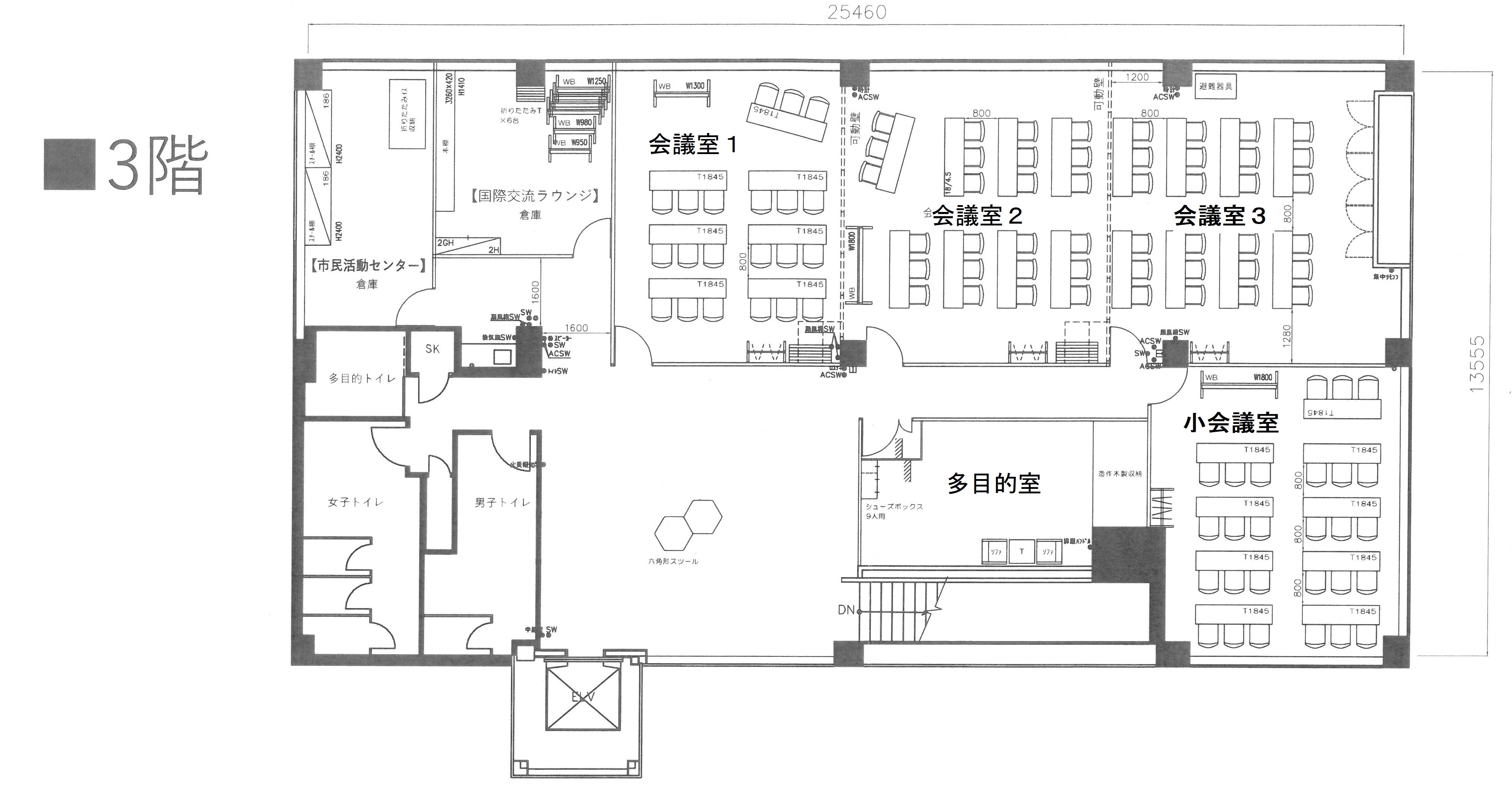
・3階には会議室1・2・3・小会議室・多目的室があります。会議室1~3はパーテーションを開けて部屋をつなげて利用することができます。
・2階にはフリースペース(机5台)があり、予約なしで利用できます。
利用人数

※会議室の連結は、利用予定人数28人以上の場合に申込できます。
部屋の利用申込
・ほどがや市民活動センターの登録団体が利用申込できます。
・申込日が休館日の場合は、翌日に受付します。
・申込枠の数え方は、午前・午後・夜間それぞれの時間帯ごとに1件と数えます。
※書道、裁縫、音声や動作を伴う活動など、活動内容によって利用が制限される場合があります。
※予約後のキャンセルはなるべく早くご連絡ください。
会議室を連結して利用する申込【5カ月前~】
・利用予定人数が28人以上のときに申込できます。
・1団体につき原則月1件まで申込できます。
・利用希望日の5か月前の1日から末日まで、窓口で受け付けます。
※抽選申込期間(4か月前)は、連結利用申込ができません。
抽選申込【4か月前】
・利用希望日4か月前の1~25日のあいだに、窓口・FAX・Eメールで受け付けます。(電話で抽選申込はできません)
・抽選申込できる数は、1団体につき1か月4件まで。(午前・午後・夜間の各時間帯の1枠を1件と数えます)
・同じ時間帯に複数の部屋を申込することができます。
・利用人数が少なく会議室の指定がない場合、申込書の欄にご記入ください。
・FAXまたはEメールの場合、申込用紙を添付して送信してください。
・抽選結果は、翌月1日以降に、窓口・電話でお問合せください。
※抽選申込期間(4か月前)は、連結利用申込ができません。
先着申込【3か月前~】
・利用希望日の3か月前の日(応当日)朝9時から、窓口・FAX・メール・電話にて受け付けます。
・電話申込は仮受付とします。利用前日までに申込書を提出してください。
・FAX、Eメールの場合、利用申込書を添付して送信してください。
・電話予約の場合、利用前日までに利用申込書を窓口・FAX・メールにてご提出ください。
・先着申込のときは、部屋の申込数に上限はありません。
移転先施設予約枠カレンダー(参考)
【令和8年4月分】10/28時点
【令和8年5月分】11/19時点
書式ダウンロード(説明書・申込書)
・施設概要、部屋の利用申込の説明書
(2025年10月28日時点)
部屋の概要(jpeg) 部屋の利用申込(jpeg) 施設概要説明書(pdf)
・利用申込書
利用申込書(jpeg) 利用申込書(pdf) 利用申込書(Excelファイル)
申込先
ほどがや市民活動センターアワーズ
〒240-0006
横浜市保土ケ谷区星川一丁目2-1(現住所)
電話番号 045-334-6306
FAX 045-339-5120
メールアドレス
toiawase@hodogaya-ours.jp
※2026年3月18日迄利用可
アクセス問合せ
※移転に伴う休館は【2026年3月19日(木)~3月31日(火)】です。その間は申込受付等全ての業務を中止します。それに伴い7月抽選予約受付の締め切りが早まりますのでご注意ください。
※4月以降はメールアドレスおよびホームページアドレスが変わります。



